Új építésű kis lakás a belváros peremén - 5

2501 Nyomtatás Ajánlás Facebook

Kedves Érdeklődő!

Eladó új építésű tégla lakás a belváros peremén! Modern elrendezés, magas műszaki tartalom, alacsony fenntartás liftes társasházban!
Kösse le új lakását ebben a remek elhelyezkedésű most épülő társasházban!

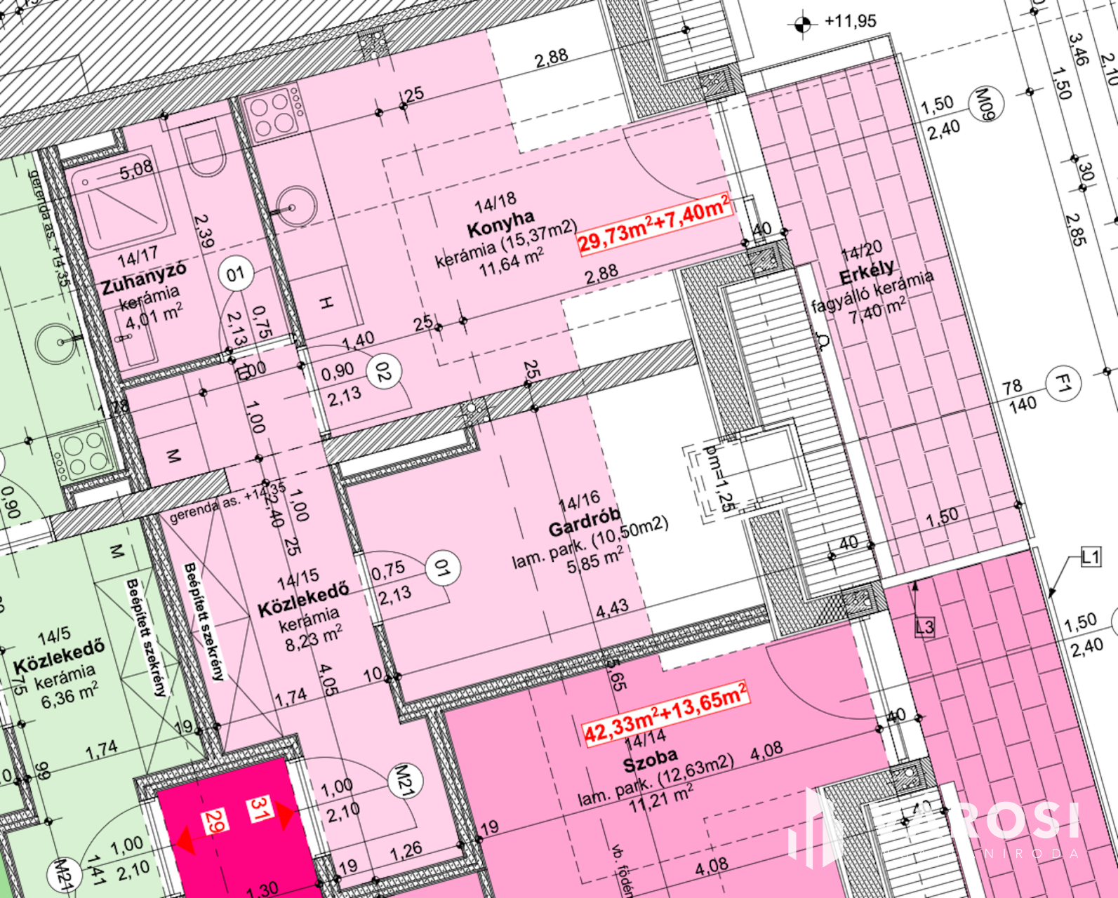
A hirdetésben szereplő lakás 4. emeleti, tetőtéri, 29,73 m2 alapterületű, 7,4 m2 erkéllyel és udvari kilátással rendelkezik.

Főbb műszaki paraméterek:
- 30 cm-es NF teherhordó homlokzati falazó rendszer
- 10 cm-es grafitos polisztirol homlokzati hőszigetelés
- 20 cm-es hanggátló válaszfal a lakások között (terv szerint)
- 10 cm-es belső dupla gipszkarton válaszfalak hanggátlással
- tetőtéri lakásokban határoló gipszkartonozás 25 cm kőzetgyapot szigeteléssel
- homlokzati hőszigetelt nyílászárók 3 rétegű üvegezéssel
- erkély szerkezet, burkolva
- erkély korlát szerkezet festve
- rejtett redőnytok homlokzati függőleges nyílászárókon
- személyfelvonó a -1. szintről
- házközponti fűtési rendszer puffertartállyal
- gépészeti szerelés: a lakás összes helyiségében padlófűtéssel
- fancoil csövezés és készülék terv szerinti helyiségbe (csak hűtési funkcióval)
- RWA hő- és füstelvezető rendszer
- 1 fázis 32A rendelkezésre állás lakásonként
- vízszintes melegburkolatok maximum: br. 8000 Ft/m2 áron
- fürdőszoba/wc egyeztetett látványterv szerinti burkolása br. 10 000 Ft/m2 anyagköltségig, 2,1 m magasságig
- szaniterek (minden, ami falon kívüli) és a csaptelepek és egyéb fürdőszobai kiegészítők bruttó 300.000 Ft értékig választhatóak
- beltéri „dekorajtó” fehér színben, br. 87.000 Ft értékben.

Ez a társasház nemcsak esztétikailag vonzó, hanem gazdaságos fenntartást is ígér, köszönhetően a modern műszaki megoldásoknak. A környék kiváló közlekedési lehetőségeket biztosít, így könnyedén elérheti Szeged bármely pontját.
Parkolási nehézségek nélkül, hiszen mélygarázs beállóhely is vásárolható a lakásokhoz 12.500.000 Ft-tól.

Ha szeretne egy kényelmes, modern otthont alacsony fenntartási költségekkel, akkor ez a lakás remek választás lehet Önnek. Ne hagyja ki ezt a nagyszerű lehetőséget!

Szerkezetkész átadás várható időpontja 2027.06.30-ig.

További információért és időpont egyeztetéssel kapcsolatban forduljon hozzám bizalommal!

Német Máté
PRÉMIUM

Német Máté

8 éve a Városi Ingatlaniroda tagja
Karrierigazgató, Ingatlanértékesítő
Szeged
+36 (30) 975 8764
Észrevétel a hirdetéssel kapcsolatban
Egy ingatlanos naplója